Home / Properties / Buy / Apartment

Park View Road, Finchley, N3

image image image image image image image
Park View Road, Finchley, N3
Apartment
2 beds
1 bath
1 reception
Asking price £480,000
What this place offers
Two Bedrooms
Garden Apartment
Off Street Parking
Ample Storage
0.5 Miles From Finchley Central Station
Well Proportioned
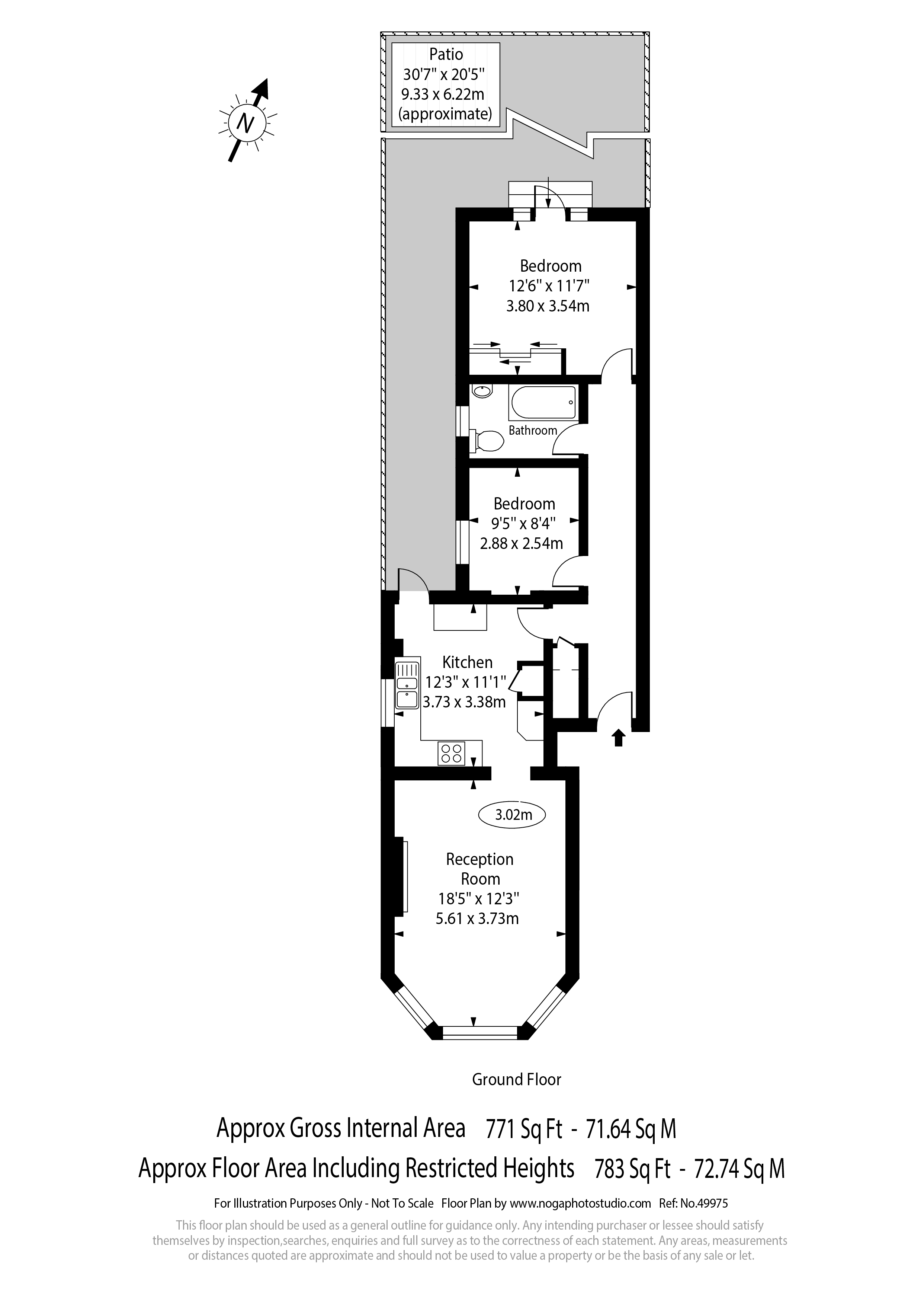
783 Sq Ft (72 Sq M) Of Internal Space
Share Of Freehold
Gorgeous Reception Room With 3M Ceiling Heights
Property Description

One of just two apartments within this handsome period building, this two-bedroom ground floor garden apartment offers approximately 770 sq ft (71 sq m) of accommodation, including a stunning reception room with circa 3 meter ceiling heights. The property further benefits from off-street parking and a share of the freehold. 

We have been advised of the following:
Tenure – Share of freehold
Service charge – Ad Hoc
Ground rent – N/A

Park View Road is ideally positioned just 0.5 miles from the array of shops, cafés, and restaurants along Ballards Lane, and is equally convenient for Finchley Central Underground Station, providing excellent access via the Northern Line.

What's the property's price?

Figures are estimates only. The final SDLT payable may vary depending on individual circumstances.

Calculate
Total SDLT due

Speak With Us Directly

Prefer to talk? We’re always happy to help.

×

Speak With Us Directly

Prefer to talk? We’re always happy to help.

WhatsApp